高知市一宮東町 中古住宅

1,700万円

高知県高知市一宮東町2丁目

土讃線「土佐一宮」駅徒歩28分

土讃線「布師田」駅徒歩36分

価格
1,700万円
間取り/建物面積
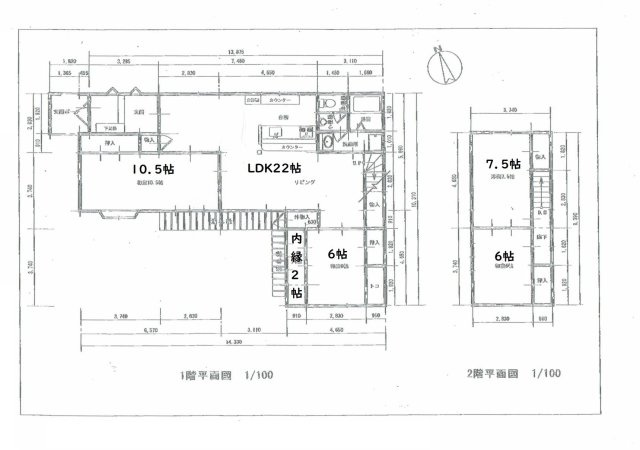
4LDK/131.14㎡
所在地
高知県高知市一宮東町2丁目
築年
1976年3月(築50年)
駐車
交通

土讃線土佐一宮」駅 徒歩28分

土讃線布師田」駅 徒歩36分

高知市一宮東町 中古住宅の基本情報

物件名
高知市一宮東町 中古住宅
価格
1,700万円
建物面積
131.14㎡
土地面積
86.2坪(284.96㎡)
築年月
1976年3月(築50年)
総戸数
-
所在地
高知県高知市一宮東町2丁目
交通

土讃線土佐一宮」駅 徒歩28分

土讃線布師田」駅 徒歩36分

高知市一宮東町 中古住宅の詳細情報

設備条件
設備(その他)
    -
駐車場/月額
有/0円
土地権利
所有権
国土法届出
不要
用途地域
第一種中高層住居専用
取引態様
仲介
引渡し
相談
備考
高知市一宮東町 中古住宅:土讃線土佐一宮にも近くて便利。好条件の揃った前面道路6m以上の物件をお薦めいたします。綺麗な室内の中古戸建て物件で素敵な日々をおくりませんか。土讃線土佐一宮近辺の戸建て探しをされるなら、パークホームにご依頼下さい。0120-927-255からご連絡をお待ちしております。

高知市一宮東町 中古住宅のコメント(おすすめポイント)

戸建て物件をお探しの方は、便利な価格からなる中古物件はいかがでしょうか。安心の前面道路6m以上の条件を備えております。新しい物件ではありませんが、不便な点は少ないです。夢のマイホームの購入を当社スタッフがサポートいたします。一戸建て情報を豊富に扱っているので、まずはお気軽にご連絡くださいませ。

高知市一宮東町 中古住宅で募集中の物件

  1. 39.66坪 (131.14㎡)

    1,700万円(42.86万円/坪)

周辺施設

  • ファミリーマート高知一宮東店の画像

    コンビニエンスストア

    ファミリーマート高知一宮東店

    696m(9分)

  • 白ゆり保育所の画像

    保育園

    白ゆり保育所

    809m(11分)

  • ローソン 高知一宮しなね店の画像

    コンビニエンスストア

    ローソン 高知一宮しなね店

    1072m(14分)

  • よどやドラッグ 一宮店の画像

    ドラッグストア

    よどやドラッグ 一宮店

    1099m(14分)

  • 一宮東小学校の画像

    小学校

    一宮東小学校

    1367m(18分)

  • 業務用スーパー 一宮店の画像

    スーパー

    業務用スーパー 一宮店

    1450m(19分)

  • 東高校の画像

    高校

    東高校

    1665m(21分)

近隣の物件

  1. 高知市重倉

    3LDK (106.04㎡)

    3,500万円

  2. 高知市桜井町2丁目

    2LDK (67.48㎡)

    3,580万円

  3. 高知市高須1丁目

    3DK (64.59㎡)

    2,080万円

  4. 高知市東雲町

    3SDK (97.47㎡)

    680万円

よく見られている物件

  1. 高知市朝倉丙

    4SLDK (147.48㎡)

    2,380万円

  2. 高知市八反町1丁目

    2LDK (81.00㎡)

    1,750万円

  3. 高知市高須1丁目

    3DK (64.59㎡)

    2,080万円

  4. 高知市桜井町2丁目

    2LDK (67.48㎡)

    3,580万円

高知市一宮東町 中古住宅

お気軽にお問い合わせください

LINEからお問い合わせ 無料お問い合わせ

有限会社パークホーム

088-821-8881

平日09:30~18:00   土・日・祝:10:00~17:00

(休:年末年始)