高知市一宮東町 中古住宅

1,800万円

高知県高知市一宮東町2丁目

土讃線「土佐一宮」駅徒歩28分

土讃線「布師田」駅徒歩36分

価格
1,800万円
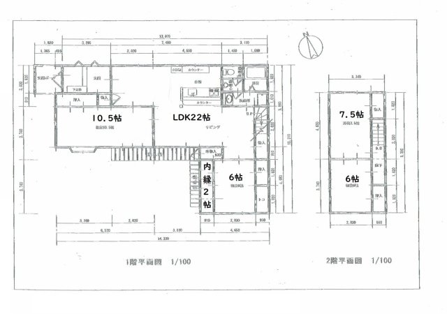
間取り
4LDK
土地面積
284.96㎡
所在地
高知県高知市一宮東町2丁目
交通

土讃線土佐一宮」駅 徒歩28分

土讃線布師田」駅 徒歩36分

建物面積
131.14㎡
築年月
1976年3月(築49年)

物件の特徴

  • バストイレ別

セールスポイント

多くの方からご好評頂いている高知市一宮東町 中古住宅のご紹介です。子供が汚しても大丈夫、ご家族にお勧めの中古の戸建て物件で新しい暮らしを。今回紹介するのは、建物面積が131.14平米。20帖以上もあるリビングで家族揃って過ごしませんか。高知市の豊富な一戸建て情報を取り扱っております。パークホームまでは0120-927-255からご連絡ください。

ポイント

浴室1坪以上 土地80坪以上 全居室収納 和室 前道6m以上

担当者のコメント

こだわりポイント満載の高知市一宮東町 中古住宅。全居室収納が付いてると生活にメリハリが付くのでお薦めです。建物面積131.14平米で広々している物件です。幅広い方にお勧めしたい高ニーズな4LDKの物件です。お客様によって希望条件は異なります。当社ではお客様個人のご希望をお伺いし、それにマッチした不動産をご紹介致しております。まずはスタッフまでご希望をお申し付けください。

基本情報

販売戸数
-
総戸数
-
間取り / 詳細
4LDK
LDK 22.0帖 1室/和室 10.5帖 1室/和室 6.0帖 1室/洋室 7.5帖 1室/和室 6.0帖 1室
向き
-
建物面積(坪数)
131.14㎡(39.66坪)
土地面積(坪数)
284.96㎡(86.20坪)
建ぺい率 /
容積率
60%/150%
築年月
1976年3月(築49年)
駐車場 /
月額料金
有 0円
土地権利
所有権
土地
(敷金 / 保証金)
- / -
建物構造
木造 / 2階建
傾斜地部分面積
-
路地状敷地
-
私道負担面積
-
セットバック
高圧線下面積
-
施工会社
-
用途地域
第一種中高層住居専用
地目 / 地勢
宅地 / -
接道状況
一方(西 6.0m)
国土法届出要否
不要
都市計画
市街化区域
総区画数 /
販売区画数
-/-
現況
空家
その他
法令上の制限
-
取引態様
仲介
引渡し
相談
取引条件の
有効期限
2026年02月22日

設備条件

設備条件
  • バス・トイレ別 / 浴室1坪以上
設備(その他)
    -

その他

物件番号
88161105
管理コード
-
建築確認番号
-
情報更新日
2026年02月08日
次回更新予定日
2026年02月22日
取扱会社
  • 有限会社パークホーム
  • 高知県高知市城見町1-1 
  • TEL:088-821-8881
  • 高知県知事 (5) 第2595号
    建設業 許可番号 
    高知県知事 第9685号

  • 公益社団法人全国宅地建物取引業保証協会
    四国不動産公取加盟
    宅地建物取引許可高知県知事(5)第2595号
    建設業許可 高知県知事許可第9685号
    住宅瑕疵保険加入
    既存住宅売買瑕疵保険加入
    リフォーム瑕疵保険加入
備考
昭和51年3月:木造平屋建62.45㎡を新築
平成10年3月:木造2階建1階39.62㎡・2階32.08㎡を増築

周辺施設

  • ファミリーマート高知一宮東店の画像

    コンビニエンスストア

    ファミリーマート高知一宮東店

    696m(9分)

  • 白ゆり保育所の画像

    保育園

    白ゆり保育所

    809m(11分)

  • ローソン 高知一宮しなね店の画像

    コンビニエンスストア

    ローソン 高知一宮しなね店

    1072m(14分)

  • よどやドラッグ 一宮店の画像

    ドラッグストア

    よどやドラッグ 一宮店

    1099m(14分)

  • 一宮東小学校の画像

    小学校

    一宮東小学校

    1367m(18分)

  • 業務用スーパー 一宮店の画像

    スーパー

    業務用スーパー 一宮店

    1450m(19分)

  • 東高校の画像

    高校

    東高校

    1665m(21分)

支払いシミュレーション

月々の支払額
9.6
購入希望物件価格
万円
頭金
万円
金利
%
返済額(ボーナス1回分)
万円
返済期間

※ボーナスは自動で年2回分で計算されます。

近隣の物件

  1. 高知市重倉 中古戸建て

    高知市重倉

    3LDK (106.04㎡)

    3,500万円

  2. 高知市高須貸家2棟

    高知市高須1丁目

    3DK (64.59㎡)

    2,080万円

  3. 高知市一宮しなね 中古住宅

    高知市一宮しなね1丁目

    3SLDK (92.33㎡)

    3,480万円

  4. 高知市 横浜新町一丁目 中古戸建て

    高知市横浜新町1丁目

    3LDK (89.95㎡)

    2,180万円

高知市一宮東町 中古住宅

高知市一宮東町 中古住宅

1,800万円

-

4LDK(131.14㎡)

お気軽にお問い合わせください

LINEからお問い合わせ 無料お問い合わせ

有限会社パークホーム

088-821-8881

平日09:30~18:00   土・日・祝:10:00~17:00

(休:年末年始)