高知市小津町・4号地-新築戸建て

4,660万円

高知県高知市小津町

土讃線「入明」駅徒歩4分

価格
4,660万円
間取り
3LDK
土地面積
139.22㎡
所在地
高知県高知市小津町
交通

土讃線入明」駅 徒歩4分

建物面積
105.17㎡
築年月
2026年1月(新築)

物件の特徴

  • バストイレ別

  • 室内洗濯機置場

  • TVモニタ付きインターホン

  • 浴室乾燥機

セールスポイント

家から465mのところに、薬や日用品を買うのに便利なよどやドラッグ 城北店があります。公園などの公共設備が整った、区画整理地内にあります。徒歩4分で駅に着く、好評の物件です。住まい探しをするのであれば、土讃線入明周辺はいかがでしょう。住みやすい環境が整っているので、きっとお客様にも満足していただけます。

ポイント

バス トイレ別 区画整理地内 ウォークインクロゼット システムキッチン 駅徒歩5分以内

担当者のコメント

全居室フローリングの、統一感ある内装です。105.17平米程の建物面積でスペースも十分。駅まで歩いてアクセスできる、徒歩4分圏内の物件です。新しい生活に心機一転、新築の戸建て物件はいかがでしょうか。パークホームでは、高知市を中心に豊富な不動産情報をご用意しております。お引っ越しをお考えなら、お気軽にご連絡ください。

基本情報

販売戸数
1戸
総戸数
-
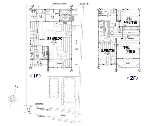
間取り / 詳細
3LDK
LDK 20.8帖 1室/洋室 4.9帖 1室/洋室 5.9帖 1室/洋室 7.0帖 1室
向き
建物面積(坪数)
105.17㎡(31.81坪)
土地面積(坪数)
139.22㎡(42.11坪)
建ぺい率 /
容積率
60%/200%
築年月
2026年1月(新築)
駐車場 /
月額料金
有(2台) 0円
土地権利
所有権
土地
(敷金 / 保証金)
- / -
建物構造
木造 / 2階建
傾斜地部分面積
-
路地状敷地
-
私道負担面積
-
セットバック
高圧線下面積
-
施工会社
-
用途地域
第一種住居
地目 / 地勢
宅地 / -
接道状況
一方(南 公道)
国土法届出要否
不要
都市計画
市街化区域
総区画数 /
販売区画数
-/1区画
現況
完成済み
その他
法令上の制限
-
取引態様
一般媒介
引渡し
即時
取引条件の
有効期限
2026年02月22日

設備条件

設備条件
  • 陽当り良好 / 室内洗濯機置場 / フローリング / 公営水道 / 公共下水 / 電気有 / 照明器具付き / 駐車2台可 / IHクッキングヒーター / コンロ2口以上 / 食器洗い乾燥機 / システムキッチン / コンロ3口 / オープンキッチン / バス・トイレ別 / 浴室乾燥機 / 温水洗浄便座 / トイレ2ヶ所 / 浴室1坪以上 / ウォークインクロゼット / TVモニタ付インターホン
設備(その他)
    -

その他

物件番号
89504937
管理コード
-
建築確認番号
第第R06確認建築高知建技00602号
情報更新日
2026年02月08日
次回更新予定日
2026年02月22日
取扱会社
  • 有限会社パークホーム
  • 高知県高知市城見町1-1 
  • TEL:088-821-8881
  • 高知県知事 (5) 第2595号
    建設業 許可番号 
    高知県知事 第9685号

  • 公益社団法人全国宅地建物取引業保証協会
    四国不動産公取加盟
    宅地建物取引許可高知県知事(5)第2595号
    建設業許可 高知県知事許可第9685号
    住宅瑕疵保険加入
    既存住宅売買瑕疵保険加入
    リフォーム瑕疵保険加入
備考
*耐震等級3(最高級)
*ZEH水準住宅
*LDKと階段上部 吹抜・LDKの西側テラス付
 ◎子育てエコホーム支援事業対象物件(補助金80万円)
   ※予算に達し次第終了

周辺施設

  • 城北中学校の画像

    中学校

    城北中学校

    445m(6分)

  • よどやドラッグ 城北店の画像

    ドラッグストア

    よどやドラッグ 城北店

    465m(6分)

  • 小高坂小学校の画像

    小学校

    小高坂小学校

    603m(8分)

  • セブンイレブン 高知吉田店の画像

    コンビニエンスストア

    セブンイレブン 高知吉田店

    908m(12分)

  • コープ よしだ店の画像

    スーパー

    コープ よしだ店

    1092m(14分)

支払いシミュレーション

月々の支払額
9.6
購入希望物件価格
万円
頭金
万円
金利
%
返済額(ボーナス1回分)
万円
返済期間

※ボーナスは自動で年2回分で計算されます。

近隣の物件

  1. 高知市東雲町 中古戸建

    高知市東雲町

    3SDK (97.47㎡)

    680万円

  2. 高知市八反町一丁目 

    高知市八反町1丁目

    2LDK (81.00㎡)

    1,750万円

  3. 高知市 横浜新町一丁目 中古戸建て

    高知市横浜新町1丁目

    3LDK (89.95㎡)

    2,180万円

  4. 高知市南御座 中古戸建て

    高知市南御座

    3SLDK (185.93㎡)

    4,580万円

高知市小津町・4号地-新築戸建て

高知市小津町・4号地-新築戸建て

4,660万円

-

3LDK(105.17㎡)

お気軽にお問い合わせください

LINEからお問い合わせ 無料お問い合わせ

有限会社パークホーム

088-821-8881

平日09:30~18:00   土・日・祝:10:00~17:00

(休:年末年始)