高知市西秦泉寺・西棟-建築条件付き-売土地

1,350万円

高知県高知市西秦泉寺

とさでん交通伊野線「堀詰」駅バス13分とさでん交通「王子(高知県)」停歩4分

価格
1,350万円
土地面積(坪数)
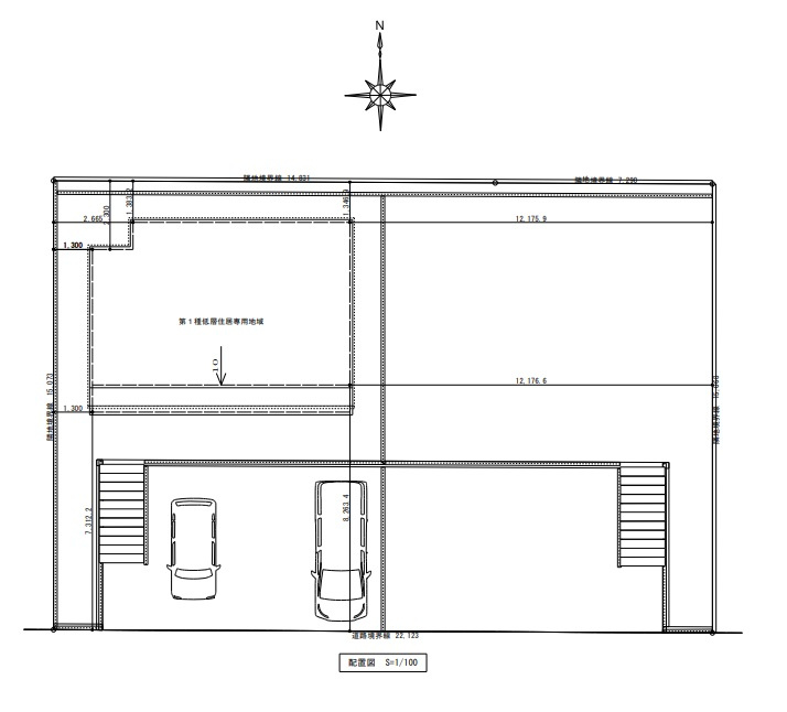
166.68㎡(50.42坪)
所在地
高知県高知市西秦泉寺
築年
-(-)
駐車
-
交通

とさでん交通伊野線堀詰」駅 バス13分 とさでん交通「王子(高知県)」 停歩4分

高知市西秦泉寺・西棟-建築条件付き-売土地の基本情報

物件名
高知市西秦泉寺・西棟-建築条件付き-売土地
価格
1,350万円
土地面積
166.68㎡
築年月
-(-)
総区画数
2区画
所在地
高知県高知市西秦泉寺
交通

とさでん交通伊野線堀詰」駅 バス13分 とさでん交通「王子(高知県)」 停歩4分

高知市西秦泉寺・西棟-建築条件付き-売土地の詳細情報

設備条件
  • 閑静な住宅地
  • 駐車2台可
設備(その他)
    -
駐車場/月額
-/-
土地権利
所有権
国土法届出
不要
用途地域
第一種低層住居専用
区画数
2区画 / 1戸
管理形態
-
管理員の勤務形態
-
管理会社
-
取引態様
一般媒介
引渡し
相談
開発許可番号
-
備考
高知市西秦泉寺・西棟-建築条件付き-売土地:土讃線入明駅にも近くて便利。資金計画やスケジュールが立てやすく、相場より安いのが建築条件付きです。南側道路に面しているため、日当たりを確保する事が出来ます。コチラは売地の情報となっています。土地購入をお考えの方は是非。0120-927-255では土地に関するお問い合わせを受け付けております。高知市の土讃線入明周辺まで、土地情報をご用意しております。

高知市西秦泉寺・西棟-建築条件付き-売土地のコメント(おすすめポイント)

ぜひ一度見ていただきたい、「高知市西秦泉寺・西棟-建築条件付き-売土地」です。日当たりを重視している方に適した南側道路になります。土地面積は166.68㎡(公簿)でございます。周辺環境も良好なエリアにある売地です。何度も経験するわけではない不動産購入だからこそパークホームの経験と知識豊富なスタッフにお任せください。お客様の不安や疑問を解決できるよう、親切丁寧な対応をモットーとしております。

高知市西秦泉寺・西棟-建築条件付き-売土地で募集中の物件

  1. 50.42坪 (166.68㎡)

    1,350万円(26.78万円/坪)

周辺施設

  • 秦泉寺公園の画像

    公園

    秦泉寺公園

    541m(7分)

  • 秦小学校の画像

    小学校

    秦小学校

    668m(9分)

  • エースワン秦泉寺店の画像

    スーパー

    エースワン秦泉寺店

    964m(13分)

  • 愛宕中学校の画像

    中学校

    愛宕中学校

    1427m(18分)

近隣の物件

  1. 高知市二葉町

    - (32.96㎡)

    250万円

  2. 高知市鴨部

    - (92.35㎡)

    680万円

  3. 高知市薊野東町

    - (230.18㎡)

    1,7405,000

  4. 高知市北高見町

    - (313.32㎡)

    2,000万円

よく見られている物件

  1. 高知市瀬戸東町3丁目

    - (201.70㎡)

    1,480万円

  2. 高知市鴨部

    - (92.35㎡)

    680万円

  3. 高知市瀬戸東町1丁目

    - (267.49㎡)

    1,780万円

  4. 高知市薊野東町

    - (230.18㎡)

    1,7405,000

高知市西秦泉寺・西棟-建築条件付き-売土地

お気軽にお問い合わせください

LINEからお問い合わせ 無料お問い合わせ

有限会社パークホーム

088-821-8881

平日09:30~18:00   土・日・祝:10:00~17:00

(休:年末年始)