高知市介良 ⑰ 新築戸建て

2,298万円

高知県高知市介良

とさでん交通後免線「鹿児」駅徒歩23分

価格
2,298万円
間取り
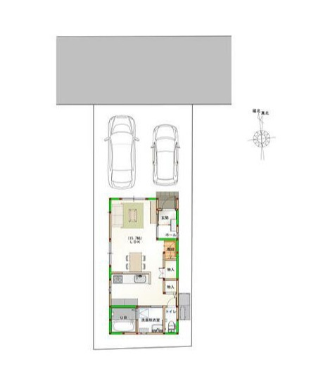
3LDK
土地面積
109.56㎡
所在地
高知県高知市介良
交通

とさでん交通後免線鹿児」駅 徒歩23分

建物面積
81.82㎡
築年月
2026年3月(予定)

物件の特徴

  • バストイレ別

  • 室内洗濯機置場

  • カウンターキッチン

セールスポイント

高知市介良 ⑰ 新築戸建て:とさでん交通後免線鹿児駅にも近くて便利。食器洗乾燥機は食後の家事の時間短縮に役立ちます。建物面積は81.82平米となっており広さも十分ではないでしょうか。お掃除がしやすいIH調理器です。パークホームでは、高知市にある不動産情報を豊富に取り扱っております。気になる方は、0120-927-255からご連絡ください。

ポイント

バス トイレ別 対面式キッチン 複層ガラス 浄水器 全居室フローリング

担当者のコメント

二口コンロが付いています。落ち着きのある整然とした街並みです。玄関ポーチがあるので、雨にぬらさずにベビーカーを置けます。生活の中心をリビングとし、そこに階段も配置した住宅です。不動産情報をお求めなら、パークホームまでご連絡ください。お問い合わせは0120-927-255から承っております。

基本情報

販売戸数
1戸
総戸数
-
間取り / 詳細
3LDK
LDK 15.7帖 1室/洋室 4.5帖 1室/洋室 5.2帖 1室/洋室 6.5帖 1室
向き
-
建物面積(坪数)
81.82㎡(24.75坪)
土地面積(坪数)
109.56㎡(33.14坪)
建ぺい率 /
容積率
60%/100%
築年月
2026年3月(予定)
駐車場 /
月額料金
有(2台) 0円
土地権利
所有権
土地
(敷金 / 保証金)
- / -
建物構造
木造 / 2階建
傾斜地部分面積
-
路地状敷地
-
私道負担面積
-
セットバック
高圧線下面積
-
施工会社
-
用途地域
第一種低層住居専用
地目 / 地勢
宅地 / -
接道状況
一方(北 公道 4.6m 間口 6.6m)
国土法届出要否
不要
都市計画
市街化区域
総区画数 /
販売区画数
-/1区画
現況
未完成
その他
法令上の制限
-
取引態様
一般媒介
引渡し
2026年4月下旬
取引条件の
有効期限
2026年02月22日

設備条件

設備条件
  • 閑静な住宅地 / 室内洗濯機置場 / フローリング / インナーバルコニー / 駐車2台可 / IHクッキングヒーター / コンロ2口以上 / 食器洗い乾燥機 / システムキッチン / カウンターキッチン / バス・トイレ別 / 浴室1坪以上 / ウォークインクロゼット / 複層ガラス
設備(その他)
    -

その他

物件番号
99638591
管理コード
-
建築確認番号
第R07確認建築高知建技00680号
情報更新日
2026年02月08日
次回更新予定日
2026年02月22日
取扱会社
  • 有限会社パークホーム
  • 高知県高知市城見町1-1 
  • TEL:088-821-8881
  • 高知県知事 (5) 第2595号
    建設業 許可番号 
    高知県知事 第9685号

  • 公益社団法人全国宅地建物取引業保証協会
    四国不動産公取加盟
    宅地建物取引許可高知県知事(5)第2595号
    建設業許可 高知県知事許可第9685号
    住宅瑕疵保険加入
    既存住宅売買瑕疵保険加入
    リフォーム瑕疵保険加入

周辺施設

  • 介良中学校の画像

    中学校

    介良中学校

    138m(2分)

  • 介良小学校の画像

    小学校

    介良小学校

    269m(4分)

  • ファミリーマート 高知介良店の画像

    コンビニエンスストア

    ファミリーマート 高知介良店

    475m(6分)

  • ヤマダ電機 家電すまいる館YAMADAの画像

    家電製品

    ヤマダ電機 家電すまいる館YAMADA

    1279m(16分)

  • mac(マック) 高須店の画像

    ドラッグストア

    mac(マック) 高須店

    1340m(17分)

支払いシミュレーション

月々の支払額
9.6
購入希望物件価格
万円
頭金
万円
金利
%
返済額(ボーナス1回分)
万円
返済期間

※ボーナスは自動で年2回分で計算されます。

高知市介良 ⑰ 新築戸建て

高知市介良 ⑰ 新築戸建て

2,298万円

-

3LDK(81.82㎡)

お気軽にお問い合わせください

LINEからお問い合わせ 無料お問い合わせ

有限会社パークホーム

088-821-8881

平日09:30~18:00   土・日・祝:10:00~17:00

(休:年末年始)