高知市大津甲 築浅中古住宅

4,400万円

高知県高知市大津

とさでん交通後免線「領石通」駅徒歩7分

土讃線「土佐大津」駅徒歩11分

価格
4,400万円
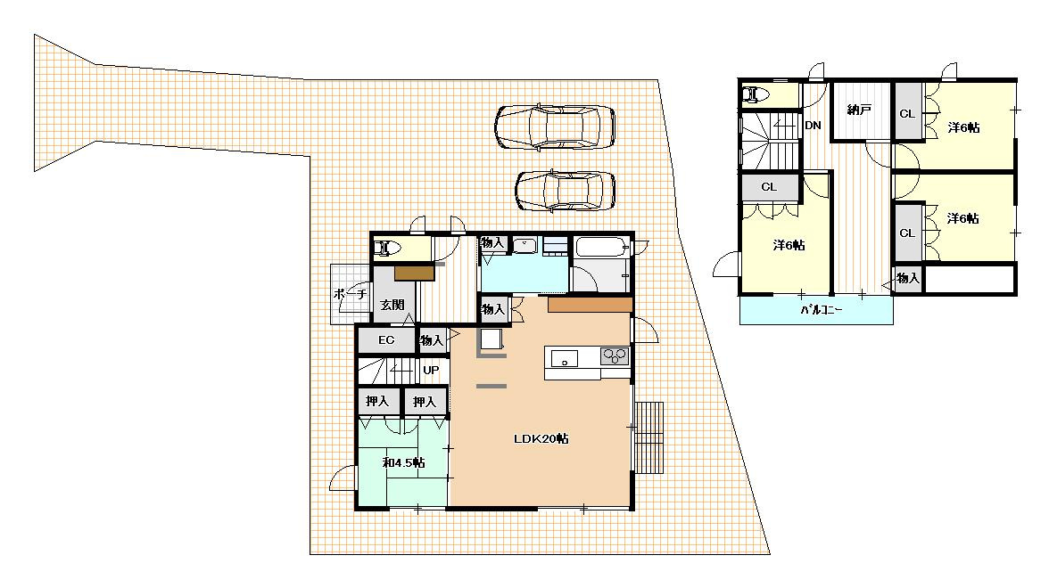
間取り
4LDK+S(納戸)
土地面積
256.50㎡
所在地
高知県高知市大津
交通

とさでん交通後免線領石通」駅 徒歩7分

土讃線土佐大津」駅 徒歩11分

建物面積
115.51㎡
築年月
2018年9月(築7年)

物件の特徴

  • バストイレ別

  • 室内洗濯機置場

  • TVモニタ付きインターホン

  • カウンターキッチン

  • 独立洗面台

  • 浴室乾燥機

セールスポイント

高知市大津甲 築浅中古住宅の詳しい情報。広々とした20畳以上のリビングダイニングのおかげで、日々の生活に余裕が生まれます。相場としても妥当な、4,400万円の物件となっています。駅から徒歩7分圏内に位置する物件です。不動産購入で不安が大きいのであれば、0120-927-255からパークホームのスタッフまでお問い合わせ下さい。

ポイント

暖房便座 食器洗乾燥機 オートバス クロゼット3ヶ所 専有面積30坪以上

担当者のコメント

大手ハウスメーカー、住友林業のお家です。 年間約90,000円(約7,500円/月)の売電収入あり。(季節によって変動あり。) ガスと電気で効率よくお湯をつくるエコワンを使用しており光熱費が削減できます。 キッチンまで床暖房が入っているのでお料理中も足元が暖かいです。

基本情報

販売戸数
-
総戸数
-
間取り / 詳細
4LDK+S(納戸)
LDK 20.0帖 1室/和室 4.5帖 1室/洋室 6.0帖 3室/S 1室
向き
-
建物面積(坪数)
115.51㎡(34.94坪)
土地面積(坪数)
256.50㎡(77.59坪)
建ぺい率 /
容積率
60%/100%
築年月
2018年9月(築7年)
駐車場 / 月額
有(5台) / -
土地権利
所有権
土地
(敷金 / 保証金)
- / -
建物構造
木造 / 2階建
傾斜地部分面積
-
路地状敷地
-
私道負担面積
-
セットバック
高圧線下面積
-
施工会社
-
用途地域
第一種低層住居専用
地目 / 地勢
- / -
接道状況
一方(西 公道 5.5m)
国土法届出要否
不要
都市計画
市街化区域
総区画数 /
販売区画数
-/-
現況
居住中
その他
法令上の制限
-
取引態様
仲介
引渡し
相談
取引条件の
有効期限
2026年05月21日

設備条件

設備条件
  • 室内洗濯機置場 / フローリング / バルコニー / プロパンガス / 公営水道 / 公共下水 / 電気有 / IHクッキングヒーター / コンロ2口以上 / 食器洗い乾燥機 / カウンターキッチン / コンロ3口 / バス・トイレ別 / 追焚機能浴室 / 浴室乾燥機 / 温水洗浄便座 / トイレ2ヶ所 / 独立洗面台 / TVモニタ付インターホン / 複層ガラス
設備(その他)
    -

その他

物件番号
67162124
管理コード
-
建築確認番号
-
情報更新日
2026年05月07日
次回更新予定日
2026年05月21日
取扱会社
  • 有限会社パークホーム
  • 高知県高知市城見町1-1 
  • TEL:088-821-8881
  • 高知県知事 (5) 第2595号
    建設業 許可番号 
    高知県知事 第9685号

  • 公益社団法人全国宅地建物取引業保証協会
    四国不動産公取加盟
    宅地建物取引許可高知県知事(5)第2595号
    建設業許可 高知県知事許可第9685号
    住宅瑕疵保険加入
    既存住宅売買瑕疵保険加入
    リフォーム瑕疵保険加入
備考
床暖房、浴室乾燥機はガス。
キッチン、お風呂は電気。
駐車場5~6台可

周辺施設

  • 大津東保育園の画像

    保育園

    大津東保育園

    313m(4分)

  • 領石通の画像

    領石通

    530m(7分)

  • 高知銀行大津支店の画像

    銀行

    高知銀行大津支店

    798m(10分)

  • 私立清和女子高校の画像

    高校

    私立清和女子高校

    1194m(15分)

  • 大津小学校の画像

    小学校

    大津小学校

    1477m(19分)

  • ナンコクスーパー大津店の画像

    スーパー

    ナンコクスーパー大津店

    1583m(20分)

  • 介良 中野簡易郵便局の画像

    郵便局

    介良 中野簡易郵便局

    2968m(38分)

支払いシミュレーション

月々の支払額

※実際の金額と異なる場合があります。

購入希望物件価格
万円
頭金
万円
金利
%
返済額(ボーナス1回分)
万円
返済期間

※ボーナスは自動で年2回分で計算されます。

近隣の物件

  1. 高知市一宮しなね 中古住宅

    高知市一宮しなね1丁目

    3SLDK (92.33㎡)

    3,380万円

  2. 高知市 桜井町2丁目 中古戸建て

    高知市桜井町2丁目

    2LDK (67.48㎡)

    3,580万円

  3. 高知市朝倉丙 中古住宅

    高知市朝倉丙

    4SLDK (147.48㎡)

    2,380万円

  4. 高知市長浜 中古戸建

    高知市長浜

    5LDK (128.99㎡)

    2,200万円

よく見られている物件

  1. 高知市八反町一丁目 

    高知市八反町1丁目

    2LDK (81.00㎡)

    1,750万円

  2. 高知市朝倉丙 中古住宅

    高知市朝倉丙

    4SLDK (147.48㎡)

    2,380万円

  3. 高知市高須貸家2棟

    高知市高須1丁目

    3DK (64.59㎡)

    1,980万円

  4. 高知市 桜井町2丁目 中古戸建て

    高知市桜井町2丁目

    2LDK (67.48㎡)

    3,580万円

高知市大津甲 築浅中古住宅

高知市大津甲 築浅中古住宅

4,400万円

-

4LDK+S(納戸)(115.51㎡)

お気軽にお問い合わせください

LINEからお問い合わせ 無料お問い合わせ

有限会社パークホーム

088-821-8881

平日09:30~18:00   土・日・祝:10:00~17:00

(休:年末年始)