高知市神田 -建築条件付き-売土地

602.25万円~1,729.78万円

高知県高知市神田

とさでん交通伊野線「鴨部」駅徒歩25分

価格
602.25万円~1,729.78万円
土地面積(坪数)
132.73㎡~219.94㎡(40.15坪~66.53坪)
所在地
高知県高知市神田
築年
-(-)
駐車
-
交通

とさでん交通伊野線鴨部」駅 徒歩25分

高知市神田 -建築条件付き-売土地の基本情報

物件名
高知市神田 -建築条件付き-売土地
価格
602.25万円~1,729.78万円
土地面積
132.73㎡~219.94㎡
築年月
-(-)
総区画数
-
所在地
高知県高知市神田
交通

とさでん交通伊野線鴨部」駅 徒歩25分

高知市神田 -建築条件付き-売土地の詳細情報

設備条件
  • 閑静な住宅地
  • 駐車2台可
設備(その他)
    -
駐車場/月額
-/-
土地権利
所有権
国土法届出
不要
用途地域
第一種中高層住居専用
区画数
- / 1戸
管理形態
-
管理員の勤務形態
-
管理会社
-
取引態様
一般媒介
引渡し
相談
開発許可番号
-
備考
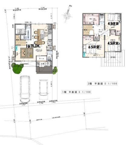
徒歩12分の場所に鴨田小学校があります。建築中に施工不良がないかチェックでき安心感を得ることができるのもメリットの1つである建築条件付きです。土地面積は132.73㎡(公簿)となっています。土地購入をお考えの方にイチオシの売地がこちらです。信頼と実績の当社が、お客様の不動産購入への不安や疑問を解消いたします。ぜひ不動産探しは当社にお任せください。お客様のお問い合わせをお待ちしております。

高知市神田 -建築条件付き-売土地のコメント(おすすめポイント)

こだわりポイント満載の高知市神田 -建築条件付き-売土地。徒歩12分の場所に鴨田小学校があります。土地の購入をお考えの方、コチラの売地をご覧ください。イチオシの土地面積132.73㎡(公簿)の土地です。高知市のとさでん交通伊野線鴨部周辺の土地をお探しなら、パークホームにお任せ下さい。0120-927-255ではお問い合わせをお待ちしております。

高知市神田 -建築条件付き-売土地で募集中の物件

  1. 40.15坪 (132.73㎡)

    6022,500円(15万円/坪)

  2. 66.53坪 (219.94㎡)

    1,7297,800円(26万円/坪)

周辺施設

  • ローソン 高知神田店の画像

    コンビニエンスストア

    ローソン 高知神田店

    254m(4分)

  • ローソン 高知船岡店の画像

    コンビニエンスストア

    ローソン 高知船岡店

    731m(10分)

  • mac(マック) 朝倉店の画像

    ドラッグストア

    mac(マック) 朝倉店

    805m(11分)

  • 土佐ぽかぽか温泉の画像

    銭湯

    土佐ぽかぽか温泉

    857m(11分)

  • 神田小学校の画像

    小学校

    神田小学校

    887m(12分)

  • 鴨田小学校の画像

    小学校

    鴨田小学校

    921m(12分)

  • フジグラン 高知の画像

    ショッピングセンター

    フジグラン 高知

    1030m(13分)

  • 西部中学校の画像

    中学校

    西部中学校

    2280m(29分)

近隣の物件

  1. 高知市二葉町

    - (32.96㎡)

    250万円

  2. 高知市薊野東町

    - (230.18㎡)

    1,7405,000

  3. 高知市神田

    - (270.45㎡)

    1,700万円

  4. 高知市高須3丁目

    - (150.06㎡)

    1,380万円

高知市神田 -建築条件付き-売土地

お気軽にお問い合わせください

LINEからお問い合わせ 無料お問い合わせ

有限会社パークホーム

088-821-8881

平日09:30~18:00   土・日・祝:10:00~17:00

(休:年末年始)